SIA Akvilon
изготавливает вентиляционные
наружные решетки.
Наружные фасадные вентиляционные решетки. Наружные жалюзийные решетки.
Материал: Стандарт: Оцинкованная жесть, PE крашенная жесть
Экстра: нержавеющая сталь, медь, титанцинк и др.
Срок изготовления: 3-5 рабочих дней. (при загрузке цеха возможно дольше)
Возможна покраска оцинкованной решетки в выбранный цвет.
Цены по запросу.НазначениеНаружные, фасадные, или как их еще принято
называть жалюзийные решетки, служат для забора или выброса воздуха,
предотвращая попадание посторонних предметов и осадков в систему
вентиляции.
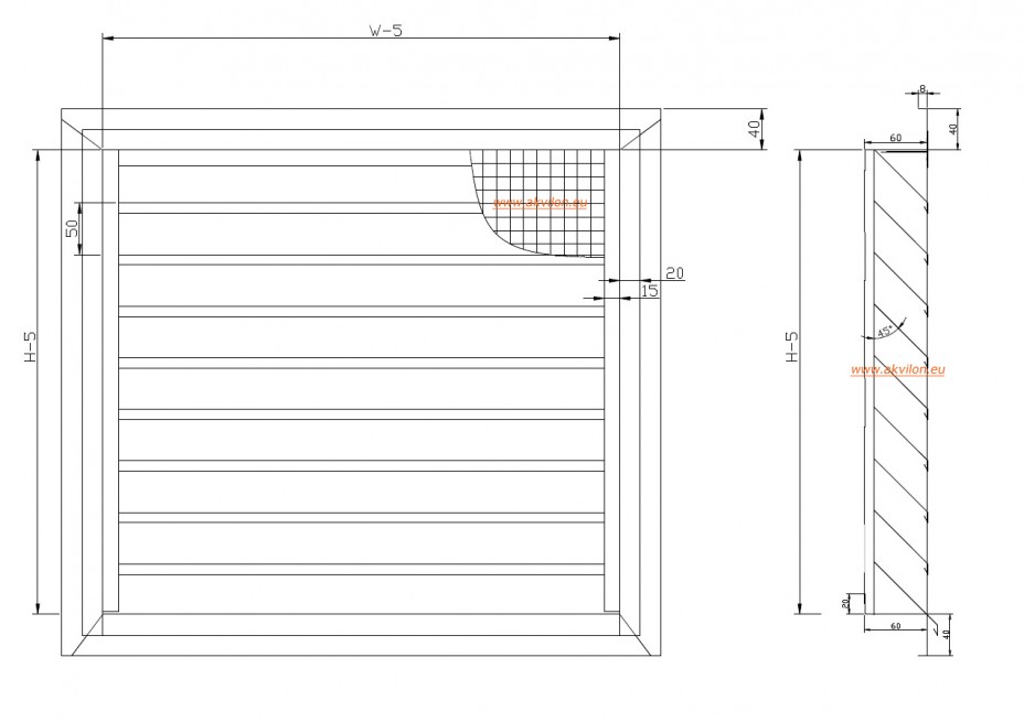
Дополнительная комплектацияНаружные решетки могут комплектоваться защитной сеткой (ячейка 10х10) или москитным полотном.
По запросу рамка решетки может иметь отверстия под крепеж.
По запросу решетка дополнительно может комплектоватьса рамкой для заделки проема изнутри
